spark-goris

Meeting pracitcal and spiritual neccessities–community center, bunker, and maker space, addressing Armenian peoples’ needs in this unique time and place.  

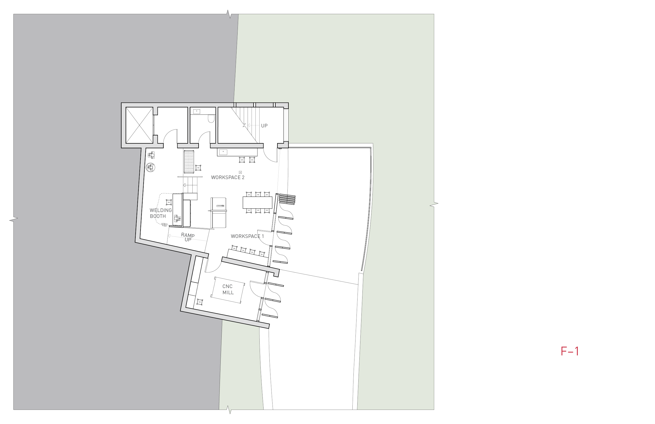
Spark is a defensible community center in Goris, Armenia, with the goal of injecting opportunity into the region, and creating a best case while preparing for the worst. Through education/ training, tools/ facilities, and bunker/ defensible architecture, Spark Goris provides local youth with opportunities for a brighter today and safer tomorrow.




* PAGE UNDER CONSTRUCTION*